• home
  • about the designer
  • portfolio
  • in progress
  • contact us

Future Projects

 

The Melvins

Caballero

Tarpon

Longpoint

Villas

River Fort

Marsh Life

Mercy Village

Mandrian

Main Beach

The Carrington

The Ferguson

  • Facebook
  • Twitter
  • Instagram
  • RSS

Designed by Elegant Themes | Powered by WordPress

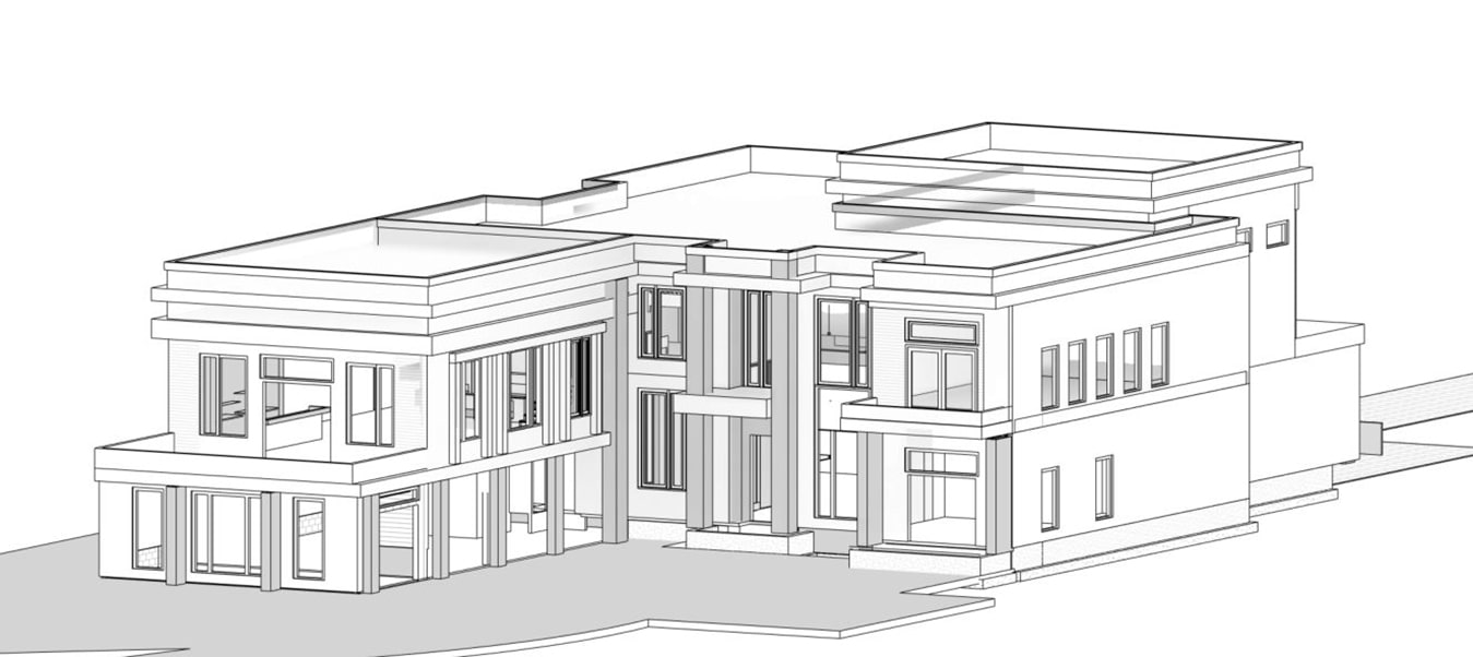
MAIN BEACH

This elegant and contemporary home sits in the heart of Fernandina Beach, Florida. It overlooks the ocean from both the second and third floors, and is backed up to historical Fort Clinch. A 5 minute ride, puts you in the historical part of Fernandina as well.

EXTERIOR

By combining the hardi smooth finish with the board & batt, we were able to define the homes overall shape and dimension. By having a metal roof, it gave the house the more contemporary side of the design and kept cleaner lines with minimal style. The porch off the master in front gave cover for the front entry and walk in, which intern gave views for the office in the Owners suite.

INTERIOR

The second floor was designed to have views from both the kitchen and the living space simultaneously. The first floor has baths, bedrooms and an extra living space in the rear for access to the back porch area. One element of the first floor was built in bunk beds, which the homeowner (Chris Bottka) designed herself, she also played and integral part in the entire design process for the bottom up and from exterior to interior.

BEACH FRONT MODERN DESIGN

Re-imagine simplicity with angles and exterior attributes. Complexity can be enlightening when used in the right setting.

ARCHITECTURAL SUPERIOR DESIGN

Combining the thought process with overall symmetry and using a combination of multiple ideas to create one finished and completely satisfying structure.

EMOTIONAL AND COMPASIONITE DESIGN

Keeping in mind the embodiment of sustaining the feel and look for time to come. Diving into the aesthetic and emotional imagery.

HISTORIC DISTRICT

This 3 story home located in the historic district of Fernandina Beach Florida, was designed to ensure that the home owners were close to the activities that Fernandina had to offer. We design this house to fit the needs of the homeowners, by keeping it close to the intercoastal and the beach at the same time. The homeowners are avid sailors and with that in mind the location was perfect.

EXTERIOR

The classic stucco finish on the tower and the traditional siding compliment each other in this island setting. The metal roof gives a clean look with simplicity to the design as well. We decided to go with white and black, which also kept the home minimal in nature. The detached garage gave the home a bigger footprint on the property, and the third story office balcony added to the overall dimension of the dwelling.

INTERIOR

Keeping the living and kitchen areas on the first floor enable the owners to have the owners suite on the second floor and the loft/overlook/office on the third. The owners also constructed their own wine cellar under the stairs , which is one of the best additions to the home since they are avid wine collectors. The cabinetry has a very modern approach and it shows in the bathroom and the kitchen.

CLIENTS

The owners had a vital part in this design, all the way from beginning to end. They worked very close with the design team to ensure it was a home like no other.

American Beach

This unique home, located in American Beach, on Amelia Island, Florida, was designed for its ocean views and open living space layout.

The couple wanted the ocean to find its way into the living space and wanted to add their personal touches to the exterior of the coastal dwelling.

EXTERIOR

We kept referring back to the ocean for direction. By adding the large opening from the living space to the balcony. It gave them the opportunity to have perfect views of the water at all times.

INTERIOR

The open floor plan enabled the couple to have a non-obstructed view of each room. The Owners Suite was placed on the second floor as well to ensure ocean views. Colors were selected with precision according to the elements surrounding the house, and it definitely shows. The Stair tower is also one of the best highlights to the home, giving ample views as well.

CLIENTS

The owners had a vital part in this design, all the way from beginning to end. They worked very close with the design team to ensure it was a home like no other.